Még több kép
azonosító 32191
alapterület 96 m²

Új építésű lakás eladó

80.990.000 huf

Hőszivattyús, modern, energiahatékony lakások eladók!
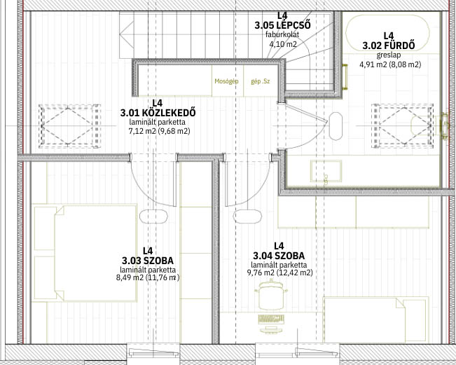
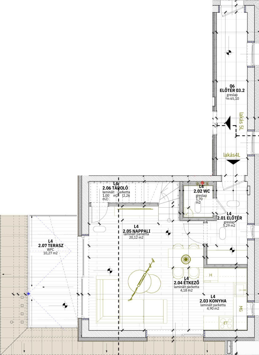
Kozármisleny folyamatosan fejlődő új részén 8 lakásból álló épületben modern, új építésű lakások eladók! Első emeleti belső kétszintes lakás nappali-konyha -étkező, 2 szobás teraszos lakás, saját autó beállóval eladó! 4. Lakás első emeleti 77/96m2 helyiség lista: - Nappali - Konyha - Étkező - Terasz 10,27m2 - Külön WC helyiség -Tároló helyiség Tetőtér: - 2 db szoba - Fürdőszoba A lakópark modern, energiahatékony rendszerekkel épül, tökéletes harmóniát képez a természettel. A lakások kényelmes, modern, funkcionális elrendezéssel, szép panorámával, magas, prémium minőségű anyagok felhasználásával csábítják új lakóikat. Minden lakáshoz díjmentes parkolóhely tartozik, a földszinti lakások saját kerttel, az emeleti lakások terasszal rendelkeznek. Az L alakú épület egy védett közösségi teret ölel körül, ahol egy közös park kerül kialakításra. Ez a védett közösségi tér az igények szerint alakítható. Lehet találkozási pont, akár medence és játszótér is megvalósítható erre a területre. A környezet kisgyermekes családok részére is biztonságos, sebességkorlátozott övezet, a közelben új óvoda, kiváló iskola is várja a gyerekeket. Műszaki tartalom: - 30cm X-Therm vázkerámia falazó-blok, 12cm grafitos hőszigetelés - 30cm födém szigetelés - Hőszigetelt műanyag nyílászárók U=<1,15W/m2K - Földszinti gépházban kialakított hőszivattyús padlófűtésrendszer és lakásonként fan-coil gyors felfűtésre és hűtésre alkalmas rendszer, HMV körben kialakított használati melegvíz cirkulációs rendszer - Konyhákban, fürdőszobákban, Wc-ben kialakított szellőztetőrendszer közvetlenül a szabadba vezetve Érdeklődni személyesen ingatlankínálat irodánkban Pécs, Garay utca 12 szám alatt vagy telefonon!

tulajdonságok

  • szobák száma
  • 3
  • komfort szintje
  • összkomfortos
  • Fűtés típusa
  • hőszivattyú
  • Emelet
  • 1
  • Szerkezet
  • tégla
  • városrész
  • parkolás
  • udvari beálló

az ingatlan extrái

amerikai konyhabeépített tetőtérjó elrendezésklímateraszjó megközelíthetőségkaputelefonegyedi mérőkkel felszerelveszigetelt épülettároló

További ingatlanjaim

Az inki.hu az ingatlankinalat.com tagja lett.